ビフォーアフター

PHOTO74

高知県/高知市
マロバシ
[構造]木造 [坪数]32.3坪 [天井高]-[ガス種]プロパンガス

 
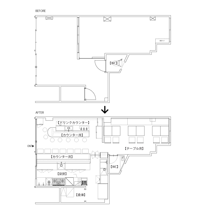
マロバシ 平面図 BEFORE/AFTERBEFORE AFTER マーク
マロバシ BEFORE マロバシ AFTER
マロバシ BEFOREマロバシ  内観 AFTER
福岡市/中央区
酒呑み 麺蔵 ゆうのや
[構造]鉄骨造 [坪数]13坪[天井高]2500[ガス種]都市ガス

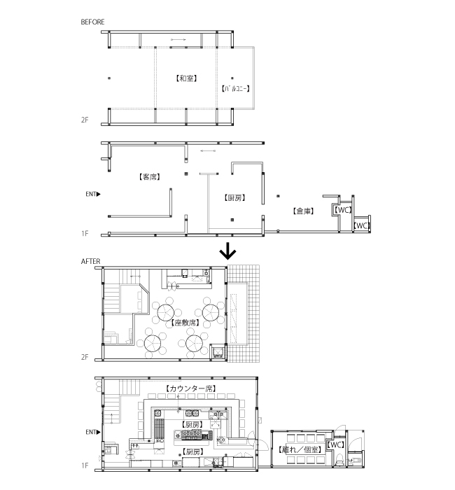
酒呑み 麺蔵 ゆうのや 平面図 BEFORE/AFTERBEFORE AFTER マーク
酒呑み 麺蔵 ゆうのや 外観 BEFORE 酒呑み 麺蔵 ゆうのや 外観 AFTER
酒呑み 麺蔵 ゆうのや 内観 BEFORE酒呑み 麺蔵 ゆうのや 内観 AFTER
 
お見積りシュミレーション