ビフォーアフター

PHOTO73

福岡市/中央区
鉄板居酒屋 ちびてつ
[構造]鉄筋コンクリート造 [坪数]13.3坪 [天井高]3300[ガス種]都市ガス

 
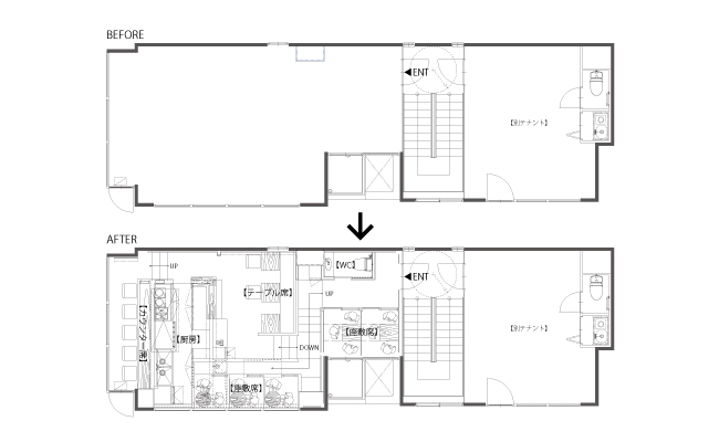
鉄板居酒屋 ちびてつ 平面図 BEFORE/AFTERBEFORE AFTER マーク
鉄板居酒屋 ちびてつ BEFORE 鉄板居酒屋 ちびてつ AFTER
鉄板居酒屋 ちびてつ 内観 BEFORE鉄板居酒屋 ちびてつ  内観 AFTER
福岡市/中央区
博多天ぷら ながおか
[構造]鉄筋コンクリート造 [坪数]13.41坪[天井高]-[ガス種]都市ガス

博多天ぷら ながおか 平面図 BEFORE/AFTERBEFORE AFTER マーク
博多天ぷら ながおか 外観 BEFORE 博多天ぷら ながおか 外観 AFTER
博多天ぷら ながおか内観 BEFORE博多天ぷら ながおか 内観 AFTER
 
お見積りシュミレーション