ビフォーアフター

PHOTO72

福岡市/中央区
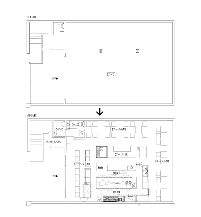
磯ぎよし ひだり
[構造]鉄筋コンクリート造 [坪数]23.1坪 [天井高]2440[ガス種]都市ガス

 
磯ぎよし ひだり 平面図 BEFORE/AFTERBEFORE AFTER マーク
磯ぎよし ひだり BEFORE 磯ぎよし ひだり AFTER
磯ぎよし ひだり 内観 BEFORE磯ぎよし ひだり  内観 AFTER
筑紫野市/二日市
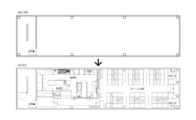
下町ビストロ ロヂウラ
[構造]鉄筋コンクリート造 [坪数] 27.6坪[天井高]2650[ガス種]都市ガス

下町ビストロ ロヂウラ 平面図 BEFORE/AFTERBEFORE AFTER マーク
下町ビストロ ロヂウラ 外観 BEFORE 下町ビストロ ロヂウラ 外観 AFTER
下町ビストロ ロヂウラ内観 BEFORE下町ビストロ ロヂウラ 内観 AFTER
 
お見積りシュミレーション