ビフォーアフター

PHOTO65

筑紫野市/二日市
MOKKEI
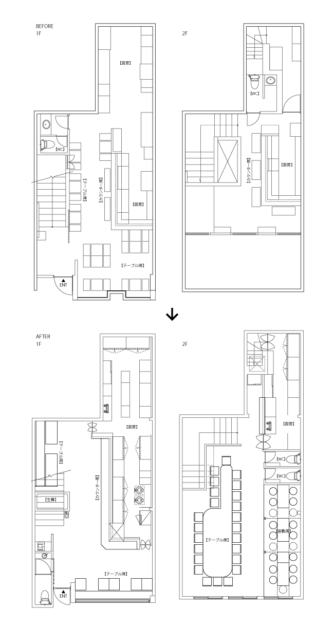
[構造]鉄骨造 [坪数]1F 19.6坪/2F 20.9坪[天井高]1F 2935/2F 2700[ガス種]プロパンガス

 
MOKKEI 平面図 BEFORE/AFTERBEFORE AFTER マーク
MOKKEI BEFORE MOKKEI AFTER
MOKKEI 内観 BEFOREMOKKEI  内観 AFTER
福岡市/中央区
urano matsusuke
[構造]鉄骨造 [坪数]20.6坪 [天井高]2720~3370[ガス種]都市ガス

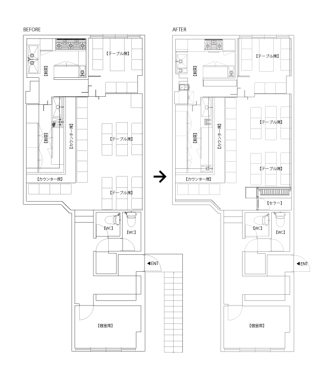
ぐぐカレー 平面図 BEFORE/AFTERBEFORE AFTER マーク
ぐぐカレー 外観 BEFORE ぐぐカレー 外観 AFTER
ぐぐカレー 内観 BEFOREぐぐカレー 内観 AFTER
 
お見積りシュミレーション