ビフォーアフター

PHOTO69

福岡市/中央区
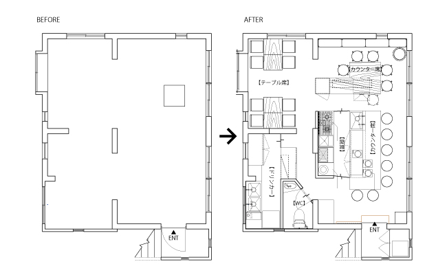
仮)三原の2階
[構造]鉄筋造 [坪数]13.6坪 [天井高]2965[ガス種]都市ガス

 
仮)三原の2階 平面図 BEFORE/AFTERBEFORE AFTER マーク
仮)三原の2階 外観 BEFORE 仮)三原の2階 外観 AFTER
仮)三原の2階 内観 BEFORE仮)三原の2階 内観 AFTER
福岡市/早良区
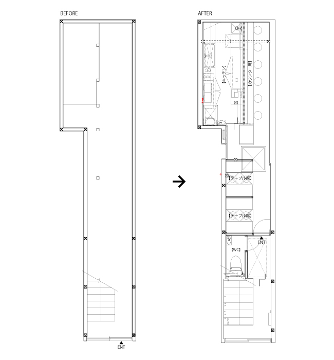
ROJIURA BAKERY CAFE
[構造]木造 [坪数]5.7坪 [天井高]3045[ガス種]都市ガス

ROJIURA BAKERY CAFE 新宿店 平面図 BEFORE/AFTERBEFORE AFTER マーク
ROJIURA BAKERY CAFE 新宿店 平面図 外観 BEFORE ROJIURA BAKERY CAFE 新宿店 平面図 外観 AFTER
ROJIURA BAKERY CAFE 新宿店 平面図 内観 BEFOREROJIURA BAKERY CAFE 平面図 内観 AFTER
 
お見積りシュミレーション