ビフォーアフター

PHOTO67

福岡市/博多区
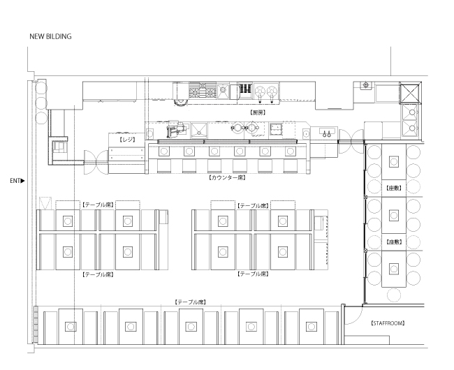
しゃぶしゃぶ・すき焼き 但馬屋
[構造]鉄筋コンクリート造 [坪数]36.5坪 [天井高]3000[ガス種]都市ガス

 
しゃぶしゃぶ・すき焼き 但馬屋 平面図 BEFORE/AFTERBEFORE AFTER マーク
しゃぶしゃぶ・すき焼き 但馬屋BEFORE しゃぶしゃぶ・すき焼き 但馬屋 AFTER
しゃぶしゃぶ・すき焼き 但馬屋 内観 BEFOREしゃぶしゃぶ・すき焼き 但馬屋 AFTER
福岡市/博多区
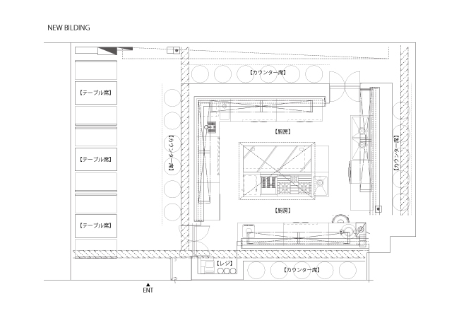
モツビストロ 天神ホルモン
[構造]鉄筋コンクリート造 [坪数]16.7坪 [天井高]3000[ガス種]都市ガス

モツビストロ 天神ホルモン 平面図 BEFORE/AFTERBEFORE AFTER マーク
モツビストロ 天神ホルモン 内観 BEFORE モツビストロ 天神ホルモン 内観 AFTER
モツビストロ 天神ホルモン 内観 BEFOREモツビストロ 天神ホルモン 内観 AFTER
 
お見積りシュミレーション