ビフォーアフター

PHOTO63

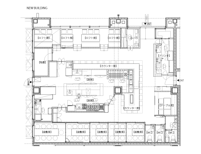
福岡県/北九州市
炉端のくろ兵衛
[構造]鉄筋コンクリート造 [坪数]50坪 [天井高]3835[ガス種]都市ガス

 
炉端のくろ兵衛 平面図 BEFORE/AFTERBEFORE AFTER マーク
炉端のくろ兵衛 BEFORE 炉端のくろ兵衛 AFTER
炉端のくろ兵衛 内観 BEFORE炉端のくろ兵衛 AFTER
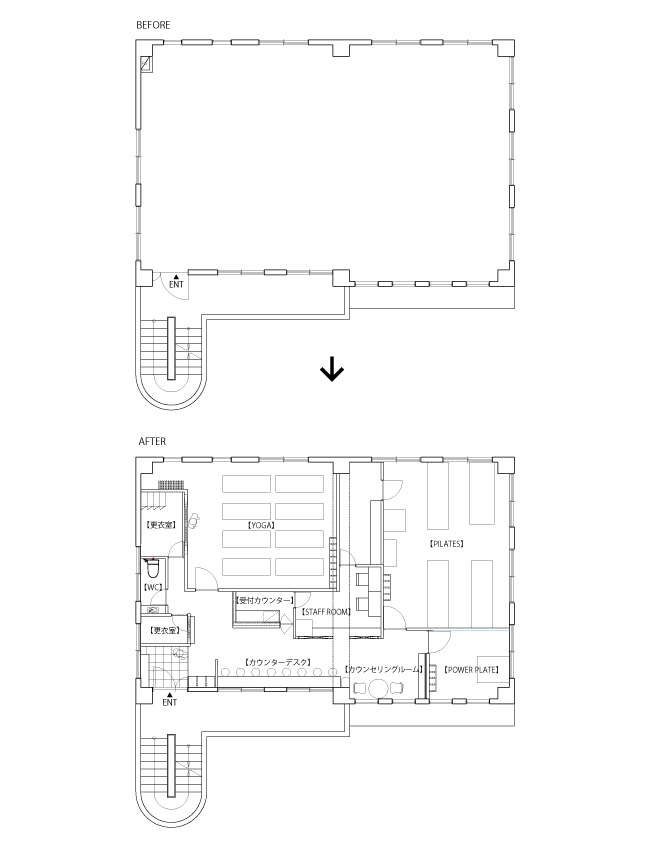
福岡市/早良区
core-revision
[構造]鉄骨造 [坪数]35坪 [天井高]2852[ガス種]-

core-revision 平面図 BEFORE/AFTERBEFORE AFTER マーク
core-revision 内観 BEFORE core-revision 内観 AFTER
core-revision 内観 BEFOREcore-revision 内観 AFTER
 
お見積りシュミレーション