ビフォーアフター

PHOTO65

大野城/白木原
まるちゃん堂
[構造]鉄骨造 [坪数]4.4坪 [天井高]2514[ガス種]プロパンガス

 
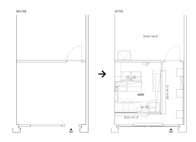
まるちゃん堂 平面図 BEFORE/AFTERBEFORE AFTER マーク
まるちゃん堂 BEFORE まるちゃん堂 AFTER
まるちゃん堂 内観 BEFOREまるちゃん堂  内観 AFTER
福岡市/中央区
ぐぐカレー
[構造]木造 [坪数]3.2坪 [天井高]2161[ガス種]都市ガス

ぐぐカレー 平面図 BEFORE/AFTERBEFORE AFTER マーク
ぐぐカレー 外観 BEFORE ぐぐカレー 外観 AFTER
ぐぐカレー 内観 BEFOREぐぐカレー 内観 AFTER
 
お見積りシュミレーション