ビフォーアフター

PHOTO63

福岡市/早良区
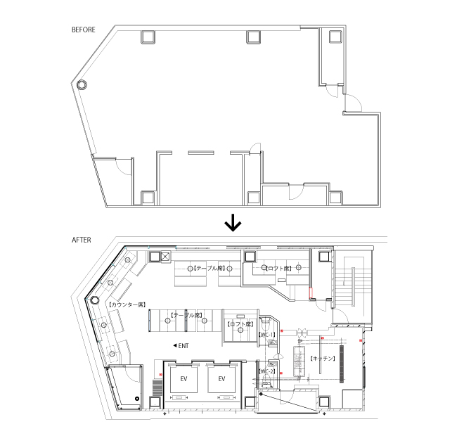
博多ほたる 西新店
[構造]鉄筋コンクリート像造 [坪数]56.6坪 [天井高]1F 3771/2F 2923[ガス種]プロパンガス

 
博多ほたる西新店 平面図 BEFORE/AFTERBEFORE AFTER マーク
博多ほたる西新店 BEFORE 博多ほたる西新店 AFTER
博多ほたる西新店 内観 BEFORE博多ほたる西新店  内観 AFTER
中央区/銀座
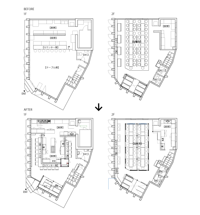
白老町 焼肉 阿部正春
[構造]鉄筋コンクリート [坪数]31坪 [天井高]2650[ガス種]都市ガス

白老町 焼肉 阿部正春 平面図 BEFORE/AFTERBEFORE AFTER マーク
白老町 焼肉 阿部正春 内観 BEFORE 白老町 焼肉 阿部正春 内観 AFTER
白老町 焼肉 阿部正春 内観 BEFORE白老町 焼肉 阿部正春 内観 AFTER
 
お見積りシュミレーション