ビフォーアフター

PHOTO61

北海道/小樽市
OSA WINERY
[構造]木骨石造 [坪数]30坪 [天井高]1F 3685/2F 2540[ガス種]プロパンガス

 
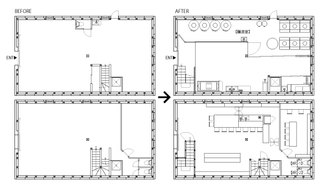
OSA WINERY 平面図 BEFORE/AFTERBEFORE AFTER マーク
OSA WINERY BEFORE OSA WINERY AFTER
OSA WINERY 内観 BEFOREOSA WINERY  内観 AFTER
福岡市/中央区
呑みくい処 コウタ 赤坂門
[構造]鉄筋コンクリート [坪数]29坪 [天井高]2500[ガス種]都市ガス

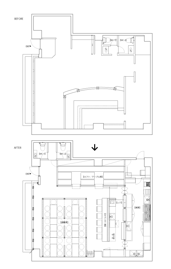
博多ほたる 西中洲本店 平面図 BEFORE/AFTERBEFORE AFTER マーク
呑みくい処 コウタ 赤坂門 外観 BEFORE 呑みくい処 コウタ 赤坂門 外観 AFTER
呑みくい処 コウタ 赤坂門 内観 BEFORE呑みくい処 コウタ 赤坂門 内観 AFTER
 
お見積りシュミレーション