ビフォーアフター

PHOTO61

筑後市/熊野字
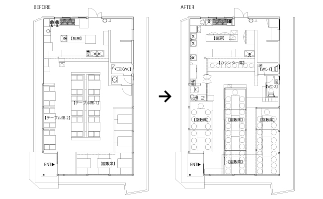
鉄板Dining うめ家
[構造]木造 [坪数]31.3坪 [天井高]2854[ガス種]プロパンガス

 
鉄板Dining うめ家 平面図 BEFORE/AFTERBEFORE AFTER マーク
鉄板Dining うめ家 BEFORE 鉄板Dining うめ家 AFTER
鉄板Dining うめ家 内観 BEFORE鉄板Dining うめ家  内観 AFTER
熊本市/中央区
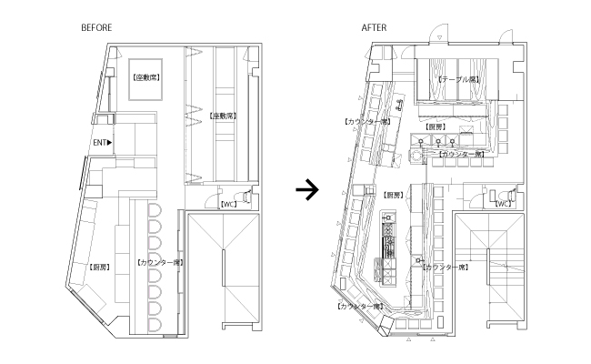
天ぷら天草水産研究所
[構造]鉄骨造 [坪数]22.5坪 [天井高]3145[ガス種]都市ガス

博多ほたる 西中洲本店 平面図 BEFORE/AFTERBEFORE AFTER マーク
博多ほたる 西中洲本店 外観 BEFORE 博多ほたる 西中洲本店i 外観 AFTER
博多ほたる 西中洲本店 内観 BEFORE六本木 酒饗 ほたる 内観 AFTER
 
お見積りシュミレーション