ビフォーアフター

PHOTO59

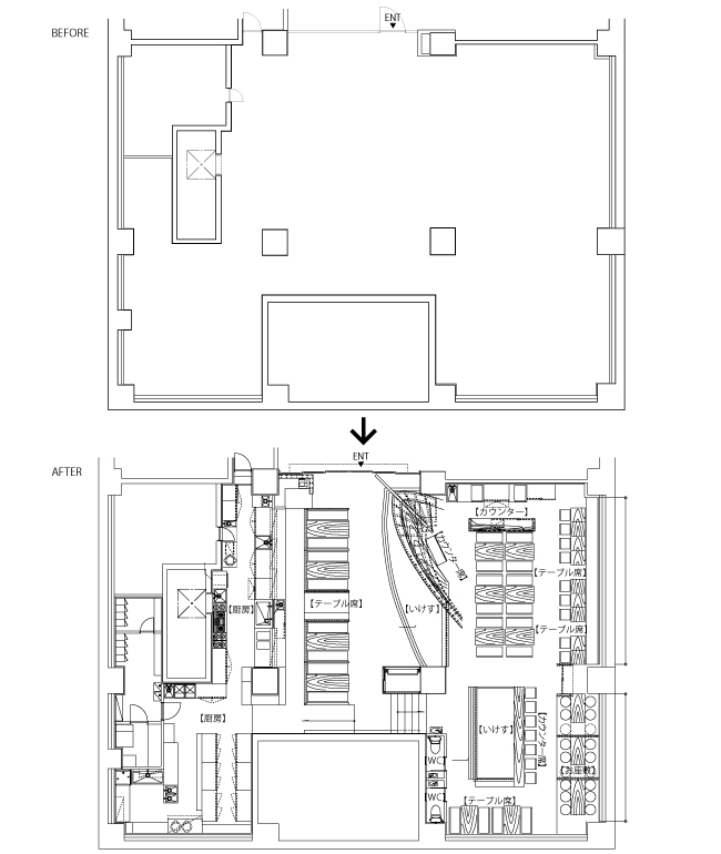
東京都/渋谷区
ざうお渋谷店
[構造]鉄筋コンクリート造 [坪数]82.7坪 [天井高]4390[ガス種]都市ガス

 
ざうお渋谷店 平面図 BEFORE/AFTERBEFORE AFTER マーク
ざうお渋谷店 BEFORE ざうお渋谷店 AFTER
ざうお渋谷店 内観 BEFOREざうお渋谷店  内観 AFTER
福岡市/中央区
COMATSU premier
[構造]鉄骨造 [坪数]28.3坪 [天井高]3000[ガス種]都市ガス

COMATSU premier 平面図 BEFORE/AFTERBEFORE AFTER マーク
COMATSU premier 外観 BEFORE COMATSU premier 外観 AFTER
COMATSU premier 内観 BEFORECOMATSU premier 内観 AFTER
 
お見積りシュミレーション