ビフォーアフター

PHOTO58

久留米市/通町
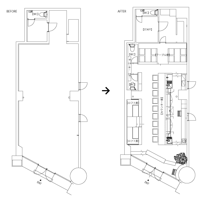
酉どうあん
[構造]鉄筋コンクリート造 [坪数]19.5坪 [天井高]2452[ガス種]都市ガス

 
酉どうあん 平面図 BEFORE/AFTERBEFORE AFTER マーク
酉どうあん BEFORE 酉どうあん AFTER
酉どうあん 内観 BEFORE酉どうあん  内観 AFTER
大野城市/白木原
BAR CALMKNOT
[構造]鉄筋コンクリート造 [坪数]25.1坪 [天井高]3615[ガス種]-

BAR CALMKNOT 平面図 BEFORE/AFTERBEFORE AFTER マーク
BAR CALMKNOT 外観 BEFORE BAR CALMKNOT 外観 AFTER
BAR CALMKNOT 内観 BEFOREBAR CALMKNOT 内観 AFTER
 
お見積りシュミレーション