ビフォーアフター

PHOTO51

福岡県/朝倉市
味処 日之出屋
[構造]鉄筋コンクリート造 [坪数]24.2坪 [天井高]3455[ガス種]プロパンガス

 
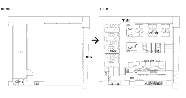
味処 日之出屋 平面図 BEFORE/AFTERBEFORE AFTER マーク
味処 日之出屋 BEFORE 味処 日之出屋 AFTER
tapata 内観 BEFORE味処  内観 AFTER
福岡市/中央区
博多ほたる 西中洲本店
[構造]鉄骨造 [坪数]59坪 [天井高]1F3255/2F2450[ガス種]都市ガス

博多ほたる 西中洲本店 平面図 BEFORE/AFTERBEFORE AFTER マーク
博多ほたる 西中洲本店 外観 BEFORE 博多ほたる 西中洲本店i 外観 AFTER
博多ほたる 西中洲本店 内観 BEFORE六本木 酒饗 ほたる 内観 AFTER
 
お見積りシュミレーション