ビフォーアフター

PHOTO54

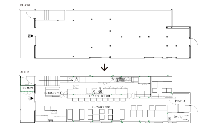
福岡市/中央区
炭焼 くまのや
[構造]鉄筋コンクリート造 [坪数] 10.7坪 [天井高] 2521[ガス種]都市ガス

 
炭焼 くまのや 平面図 BEFORE/AFTERBEFORE AFTER マーク
炭焼 くまのや 外観 BEFORE 炭焼 くまのや 外観 AFTER
炭焼 くまのや 内観 BEFORE炭焼 くまのや 内観 AFTER
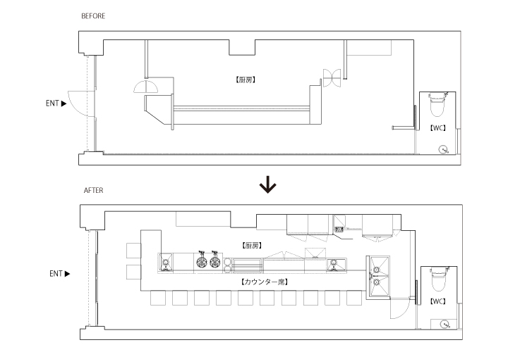
福岡市/中央区
唄う稲穂
[構造]木造 [坪数] 22坪 [天井高] ―[ガス種]都市ガス

唄う稲穂 平面図 BEFORE/AFTERBEFORE AFTER マーク
唄う稲穂 平面図 外観 BEFORE 唄う稲穂 平面図 外観 AFTER
唄う稲穂 平面図 内観 BEFORE唄う稲穂 内観 AFTER
 
お見積りシュミレーション