ビフォーアフター

PHOTO54

福岡県/春日市
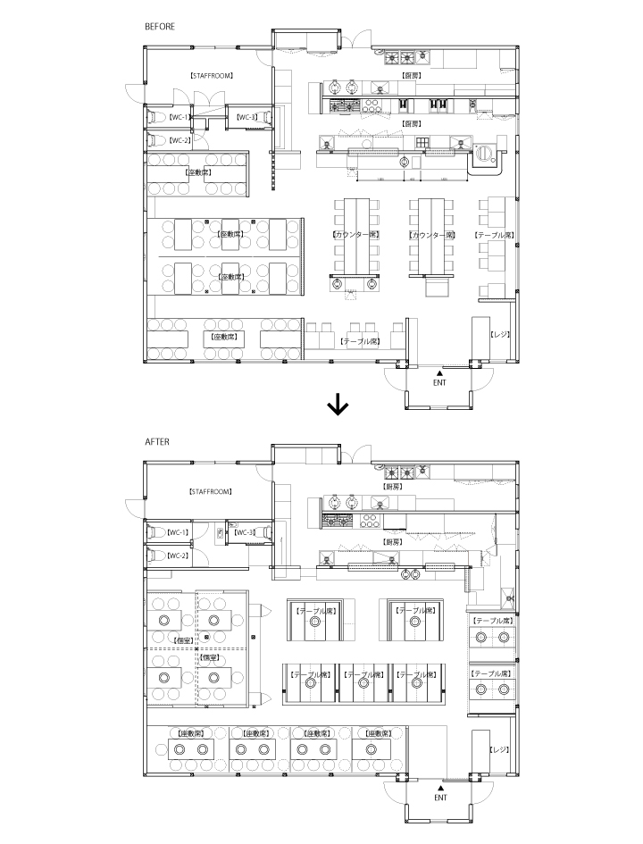
焼肉 龍王館 春日店
[構造]木造 [坪数] 56坪 [天井高] 2980[ガス種]プロパンガス

 
焼肉 龍王館 春日店 平面図 BEFORE/AFTERBEFORE AFTER マーク
焼肉 龍王館 春日店 外観 BEFORE 焼肉 龍王館 春日店 外観 AFTER
焼肉 龍王館 春日店 内観 BEFORE焼肉 龍王館 春日店 内観 AFTER
福岡市/西区
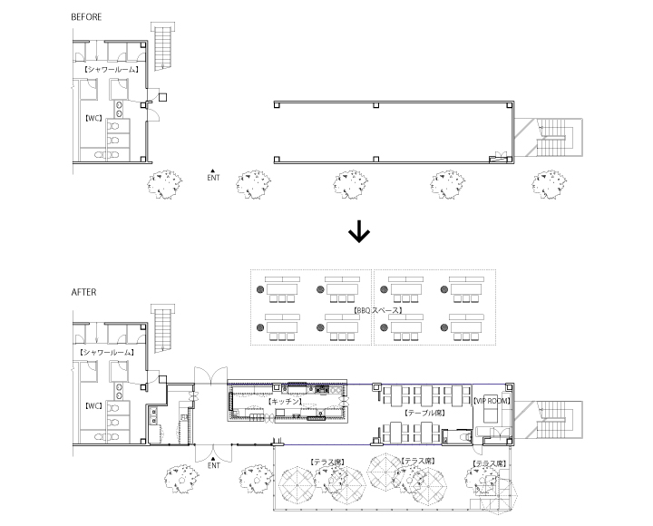
HARBOR HOUSE
[構造]鉄骨造 [坪数] 126.3坪 [天井高] 2600[ガス種]プロパンガス

HARBOR HOUSE 平面図 BEFORE/AFTERBEFORE AFTER マーク
HARBOR HOUSE 平面図 外観 BEFORE HARBOR HOUSE 平面図 外観 AFTER
HARBOR HOUSE 平面図 内観 BEFOREHARBOR HOUSE 内観 AFTER
 
お見積りシュミレーション