ビフォーアフター

PHOTO53

東京都/中央区
博多ほたる 銀座店
[構造]鉄筋コンクリート造 [坪数]42坪 [天井高]3300[ガス種]都市ガス

 
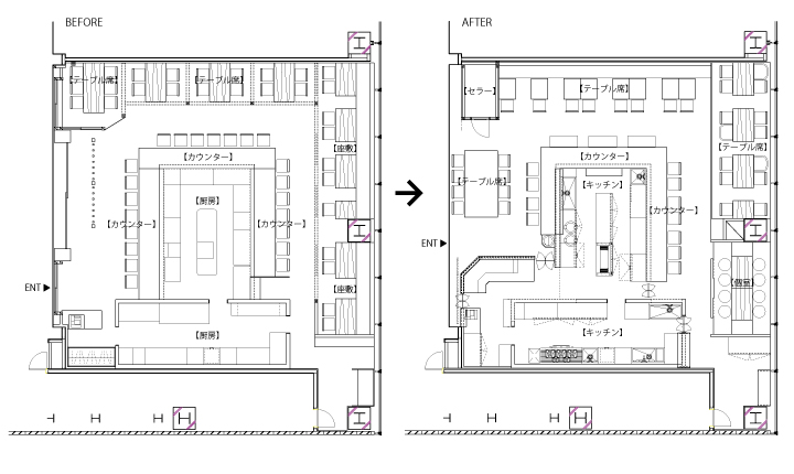
博多ほたる 銀座店 平面図 BEFORE/AFTERBEFORE AFTER マーク
博多ほたる 銀座店 外観 BEFORE 博多ほたる 銀座店 外観 AFTER
博多ほたる 銀座店 内観 BEFORE博多ほたる 銀座店 内観 AFTER
東京都/新宿区
釣船茶屋 ざうお 新宿店
[構造]鉄筋コンクリート造 [坪数]209坪 [ガス種]都市ガス

釣船茶屋ざうお 新宿店 平面図 BEFORE/AFTERBEFORE AFTER マーク
釣船茶屋ざうお 新宿店 平面図 外観 BEFORE 釣船茶屋ざうお 新宿店 平面図 外観 AFTER
釣船茶屋ざうお 新宿店 平面図 内観 BEFORE釣船茶屋ざうお 新宿店 平面図 内観 AFTER
 
お見積りシュミレーション