ビフォーアフター

PHOTO50

福岡/久留米市
魚肉菜 座頭 道安
[構造]木造 [坪数]43.9坪 [天井高]2500~5000 [ガス種]LPガス

 
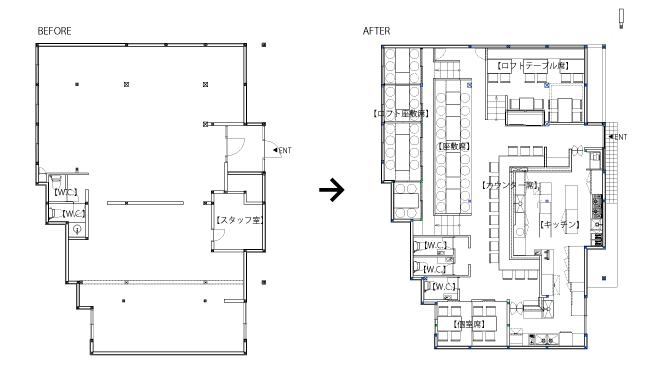
串と水炊 博多 松すけ 平面図 BEFORE/AFTERBEFORE AFTER マーク
串と水炊 博多 松すけ BEFORE 串と水炊 博多 松すけ AFTER
串と水炊 博多 松すけ 内観 BEFORE串と水炊 博多 松すけ 内観 AFTER
福岡市/博多区
串と水炊 博多 松すけ
[構造]鉄筋コンクリート造 [坪数]65坪 [天井高]2400[ガス種]都市ガス

座頭 道安 平面図 BEFORE/AFTERBEFORE AFTER マーク
座頭 道安 外観 BEFORE 座頭 道安 外観 AFTER
座頭 道安 内観 BEFORE座頭 道安 内観 AFTER
 
お見積りシュミレーション