ビフォーアフター

PHOTO50

福岡市/中央区
Run-Hun,sha
[構造]鉄骨造 [坪数]25.9坪 [天井高]3400[ガス種]都市ガス

 
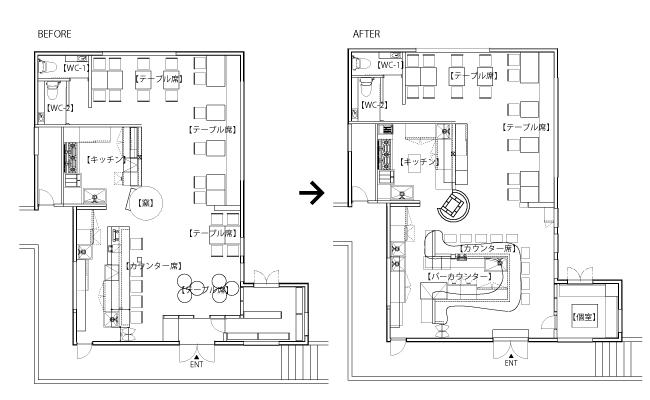
Run-Hun,sha 平面図 BEFORE/AFTERBEFORE AFTER マーク
Run-Hun,sha BEFORE Run-Hun,sha AFTER
Run-Hun,sha 内観 BEFORERun-Hun,sha 内観 AFTER
福岡市/中央区
comatsu imaizumi
[構造]木造 [坪数]26.5坪 [天井高]2485 [ガス種]都市ガス

comatsu imaizumi 平面図 BEFORE/AFTERBEFORE AFTER マーク
comatsu imaizumi 外観 BEFORE comatsu imaizumi 外観 AFTER
comatsu imaizumi 内観 BEFOREcomatsu imaizumi 内観 AFTER
 
お見積りシュミレーション