ビフォーアフター

PHOTO48

福岡県/筑紫野市
中るラーメン 筑紫野店
[構造]木造 [坪数]40坪 [天井高]3000[ガス種]プロパンガス

 
中るラーメン 筑紫野店 平面図 BEFORE/AFTERBEFORE AFTER マーク
中るラーメン 筑紫野店 BEFORE 中るラーメン 筑紫野店 AFTER
中るラーメン 筑紫野店 内観 BEFORE中るラーメン 筑紫野店 内観 AFTER
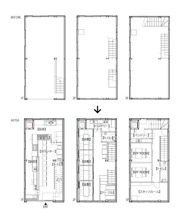
福岡市/博多区
古門戸町 柳や
[構造]鉄筋コンクリート[坪数]1F 14坪 /2F 14坪/3F 14坪 計42坪 [天井高]1F 2825 /2F 2645/3F 2690[ガス種]都市ガス

古門戸町 柳や 平面図 BEFORE/AFTERBEFORE AFTER マーク
古門戸町 柳や 外観 BEFORE 古門戸町 柳や 外観 AFTER
古門戸町 柳や 内観 BEFORE古門戸町 柳や 内観 AFTER
 
お見積りシュミレーション