ビフォーアフター

PHOTO48

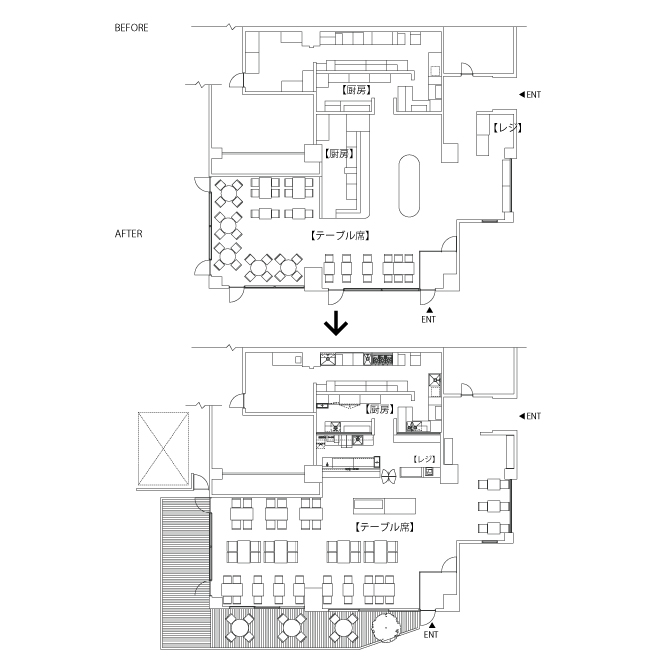
福岡市/博多区
ハイボール酒場 ともすけ 博多店
[構造]鉄筋コンクリート造 [坪数]36坪 [天井高]3325[ガス種]都市ガス

 
ハイボール酒場 ともすけ 平面図 BEFORE/AFTERBEFORE AFTER マーク
ハイボール酒場 ともすけ BEFORE ハイボール酒場 ともすけ AFTER
ハイボール酒場 ともすけ 内観 BEFOREハイボール酒場 ともすけ 内観 AFTER
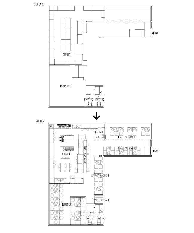
福岡市/中央区
Green Garden 田頭茶舗
[構造]鉄骨造 [坪数]58坪 [天井高]3000 [ガス種]都市ガス

Green Garden 田頭茶舗 平面図 BEFORE/AFTERBEFORE AFTER マーク
Green Garden 田頭茶舗 外観 BEFORE Green Garden 田頭茶舗 外観 AFTER
Green Garden 田頭茶舗 内観 BEFOREGreen Garden 田頭茶舗 内観 AFTER
 
お見積りシュミレーション