ビフォーアフター

PHOTO47

福岡県/大野城市
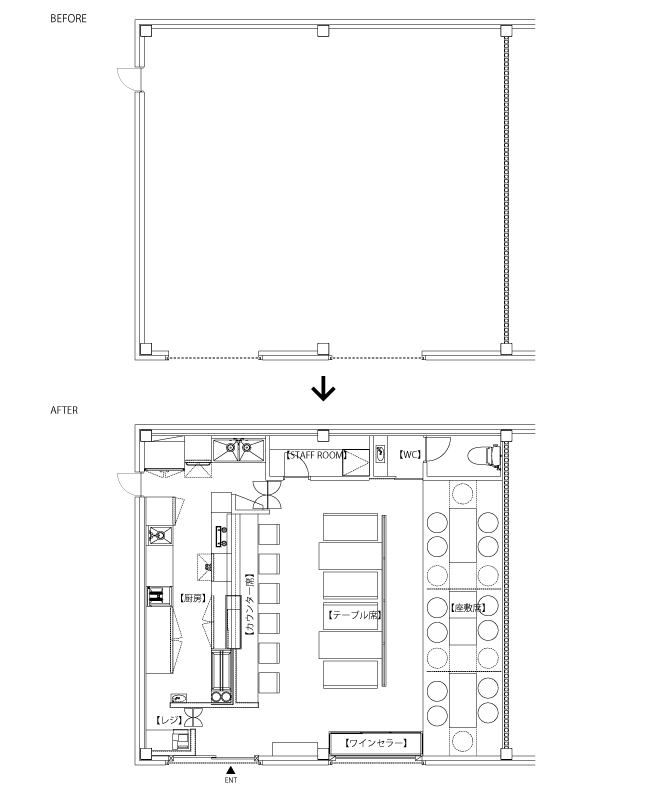
焼鳥 丸屋
[構造]鉄筋コンクリート造 [坪数]18坪 [天井高]3070[ガス種]プロパンガス

 
焼鳥 丸屋 平面図 BEFORE/AFTERBEFORE AFTER マーク
焼鳥 丸屋 BEFORE 焼鳥 丸屋 AFTER
焼鳥 丸屋 内観 BEFORE焼鳥 丸屋 内観 AFTER
福岡市/博多区
博多三昧 まるとく食堂
[構造]鉄骨造 [坪数]26坪 [天井高]2400 [ガス種]都市ガス

まるとく食堂 平面図 BEFORE/AFTERBEFORE AFTER マーク
まるとく食堂 外観 BEFORE まるとく食堂 外観 AFTER
まるとく食堂 内観 BEFOREまるとく食堂 内観 AFTER
 
お見積りシュミレーション