ビフォーアフター

PHOTO46

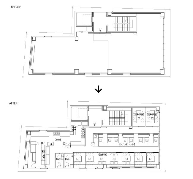
福岡市/中央区
磯ぎよし 天神店
[構造]鉄筋コンクリート造 [坪数]34.5坪[ガス種]プロパンガス

 
磯ぎよし 平面図 BEFORE/AFTERBEFORE AFTER マーク
磯ぎよし 内観 BEFORE 磯ぎよし 内観 AFTER
磯ぎよし 内観 BEFORE磯ぎよし 内観 AFTER
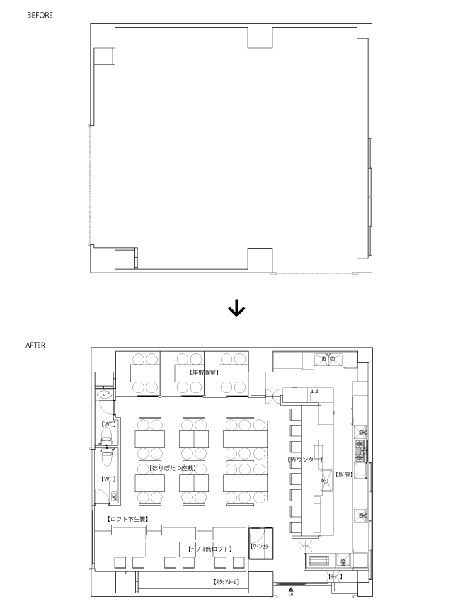
福岡県/中央区
もつ鍋一藤 西通り店
[構造]鉄骨造 [坪数]38坪 [天井高]3600 [ガス種]都市ガス

もつ鍋一藤 平面図 BEFORE/AFTERBEFORE AFTER マーク
もつ鍋一藤 外観 BEFORE もつ鍋一藤 外観 AFTER
もつ鍋一藤 内観 BEFOREもつ鍋一藤 内観 AFTER
 
お見積りシュミレーション