ビフォーアフター

PHOTO43

福岡県/中央区
居心地屋 REON 春吉店
[構造]鉄筋コンクリート造 [坪数]16坪 [天井高]2945[ガス種]プロパンガス

 
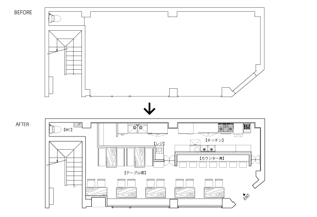
REON 平面図 BEFORE/AFTERBEFORE AFTER マーク
REON 外観 BEFORE REON 外観 AFTER
REON 内観 BEFOREREON 内観 AFTER
福岡県/博多区
第十六海幸丸 博多丸秀
[構造]鉄筋コンクリート造 [坪数]32.7坪 [天井高]3430 [ガス種]都市ガス

博多丸秀 平面図 BEFORE/AFTERBEFORE AFTER マーク
博多丸秀 外観 BEFORE 博多丸秀 外観 AFTER
博多丸秀 内観 BEFORE博多丸秀  外観 AFTER
 
お見積りシュミレーション