ビフォーアフター

PHOTO42

福岡県/筑紫野市
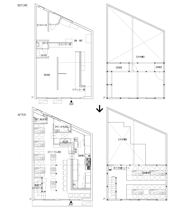
博多丸秀 二日市
[構造]木造 [坪数]1F 16坪/2F 7.5坪 [天井高]1F2350~4890/2F2540 [ガス種]プロパンガス

博多丸秀 二日市 平面図 BEFORE/AFTERBEFORE AFTER マーク
博多丸秀 二日市 内観before 博多丸秀 二日市 内観 AFTER
博多丸秀 外観 BEFORE博多丸秀 二日市  外観 AFTER
 
福岡県/中央区
KBCドォーモ
[構造]- [坪数]-

 
KBCドォーモ 平面図 BEFORE/AFTERBEFORE AFTER マーク
KBCドォーモ スタジオ内 BEFORE KBCドォーモ スタジオ内 AFTER
KBCドォーモ スタジオ内 BEFOREKBCドォーモ スタジオ内 AFTER
お見積りシュミレーション