ビフォーアフター

PHOTO41

福岡県/筑紫野市
ハイボール酒場 ともすけ
[構造]骨鉄筋コンクリート造 [坪数]16坪 [天井高]2650 [ガス種]プロパンガス

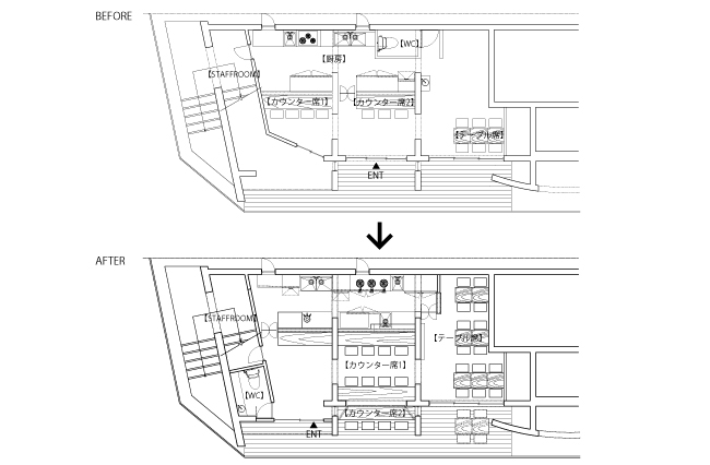
ともすけ 平面図 BEFORE/AFTERBEFORE AFTER マーク
ともすけ 内観 BEFORE ともすけ 内観 AFTER
ともすけ 内観 BEFOREともすけ  外観 AFTER
 
東京都/品川区
釣船茶屋 ざうお 目黒店
[構造]鉄筋コンクリート造 [坪数]180坪 [天井高]2470[ガス種]都市ガス

 
ざうお 平面図 BEFORE/AFTERBEFORE AFTER マーク
ざうお 店内 BEFORE ざうお 店内 AFTER
ざうお エントランス BEFOREざうお エントランス AFTER
お見積りシュミレーション