ビフォーアフター

PHOTO39

福岡県/久留米市
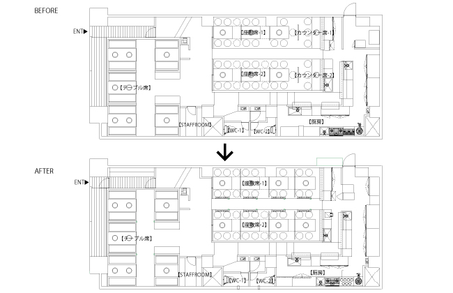
焼肉龍王館 本店 リニューアル
[構造]鉄筋コンクリート造 [坪数]40坪 [天井高]2800 [ガス種]プロパンガス

焼肉龍王館 本店 リニューアル 平面図 BEFORE/AFTERBEFORE AFTER マーク
焼肉龍王館 本店 内観 BEFORE 焼肉龍王館 本店 内観 AFTER
焼肉龍王館 本店 内観 BEFORE焼肉龍王館 本店  外観 AFTER
 
福岡県/中央区
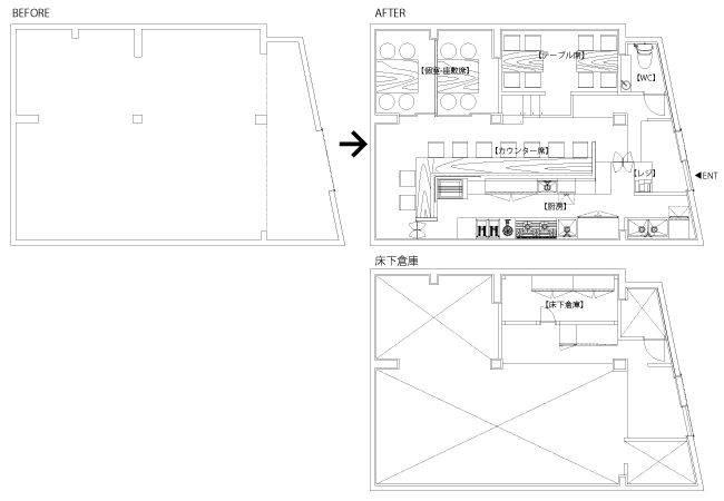
三原豆腐店 西中洲
[構造]鉄筋コンクリート造 [坪数]17.5坪 [天井高]3380 [ガス種]プロパンガス

 
三原豆腐店 平面図 BEFORE/AFTERBEFORE AFTER マーク
三原豆腐店 店内 BEFORE 三原豆腐店 店内 AFTER
三原豆腐店 エントランス BEFORE三原豆腐店 エントランス AFTER
お見積りシュミレーション