ビフォーアフター

PHOTO37

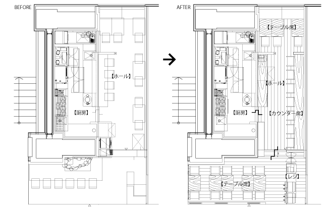
福岡県/中央区
ロヂウラ食堂 PARCO店
[構造]鉄筋コンクリート造 [坪数] 13坪 [天井高]2450 [ガス種]―

BEFORE AFTER マーク
ロヂウラ食堂 外観 BEFORE ロヂウラ食堂 外観 AFTER
ロヂウラ食堂 店内 BEFOREロヂウラ食堂 店内 AFTER
 
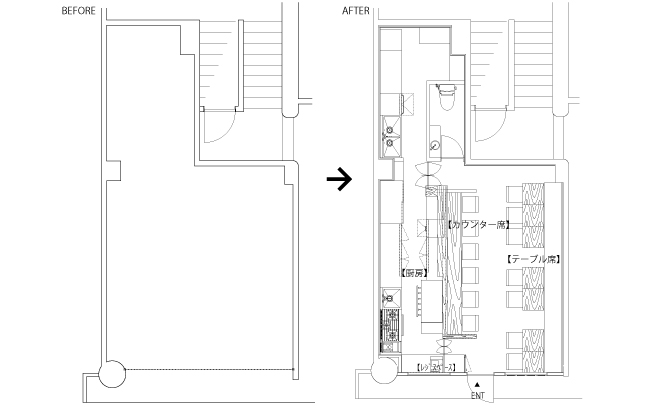
福岡県/中央区
COUTA 大手門店
[構造]鉄筋コンクリート造 [坪数] 12坪 [天井高]2400 [ガス種]都市ガス

 
BEFORE AFTER マーク
COUTA 店内 BEFORE COUTA 店内 AFTER
COUTA エントランス BEFORECOUTA エントランス BEFORE
お見積りシュミレーション