ビフォーアフター

PHOTO31

福岡県/博多区
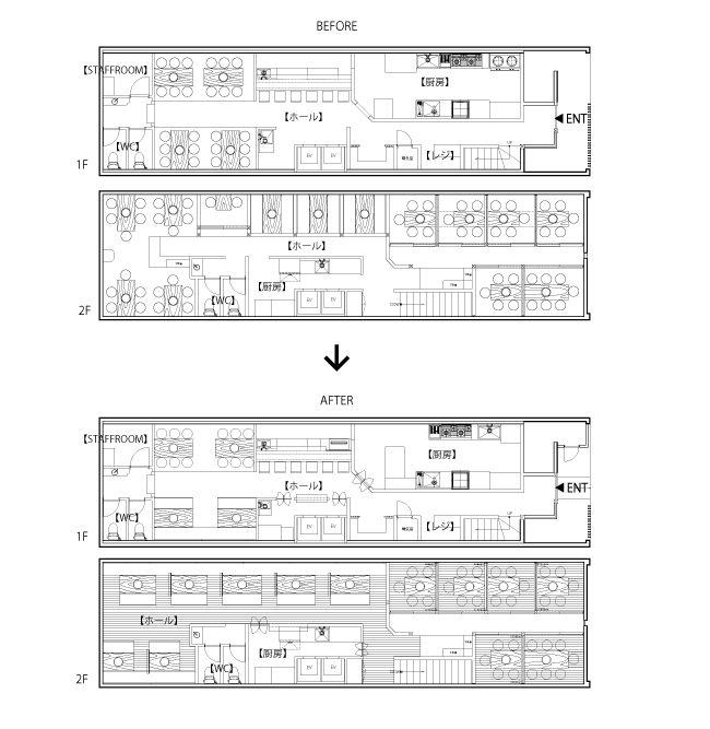
もつ処 上田商店
[構造]木造2階建 [坪数]1F27.5坪/2F27.5坪(計55坪) [天井高]1F2850/2F2850 [ガス種] 都市ガス・プロパンガス

もつ処 上田商店 平面図 BEFORE/AFTERBEFORE AFTER マーク
もつ処 上田商店 外観 BEFORE もつ処 上田商店 外観 AFTER
もつ処 上田商店 店内 BEFOREもつ処 上田商店 店内 AFTER
福岡県/中央区
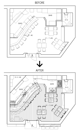
kitchen&bar comatsu
[構造]鉄筋コンクリート造 [坪数]15坪 [天井高]2590 [ガス種]都市ガス

 
BEFORE AFTER マーク comatsu 店内 BEFORE comatsu 店内 AFTER
comatsu エントランス BEFOREcomatsu エントランス AFTER
お見積りシュミレーション