ビフォーアフター

PHOTO31

福岡県/博多区
UEKEN NEW OFFICE
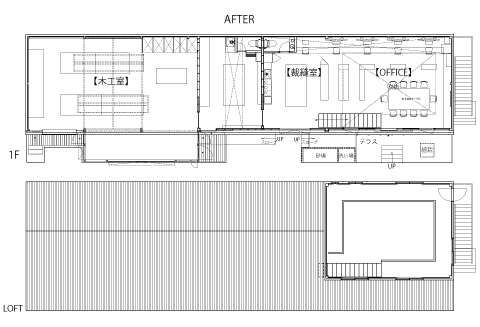
[構造]鉄骨造 [敷地面積]469㎡ (142坪) [1階事務所]141㎡(43坪) [ロフト]42㎡(13坪) [天井高]3000 [ガス種] ―

UEKEN NEW OFFICE 平面図 BEFORE UEKEN NEW OFFICE 平面図 AFTER BEFORE AFTER マーク UEKEN NEW OFFICE エントランス BEFORE UEKEN NEW OFFICE エントランス AFTER UEKEN NEW OFFICE レジカウンター UEKEN NEW OFFICE 打合せテーブル UEKEN NEW OFFICE テーブル席 UEKEN NEW OFFICE 2F吹き抜け

お見積りシュミレーション